These identical buildings share a lobby, concession stand and three restroom locations, making them ideal for trade and consumer shows.
While a perfect complement to one another, either building can be utilized individually depending on your needs.
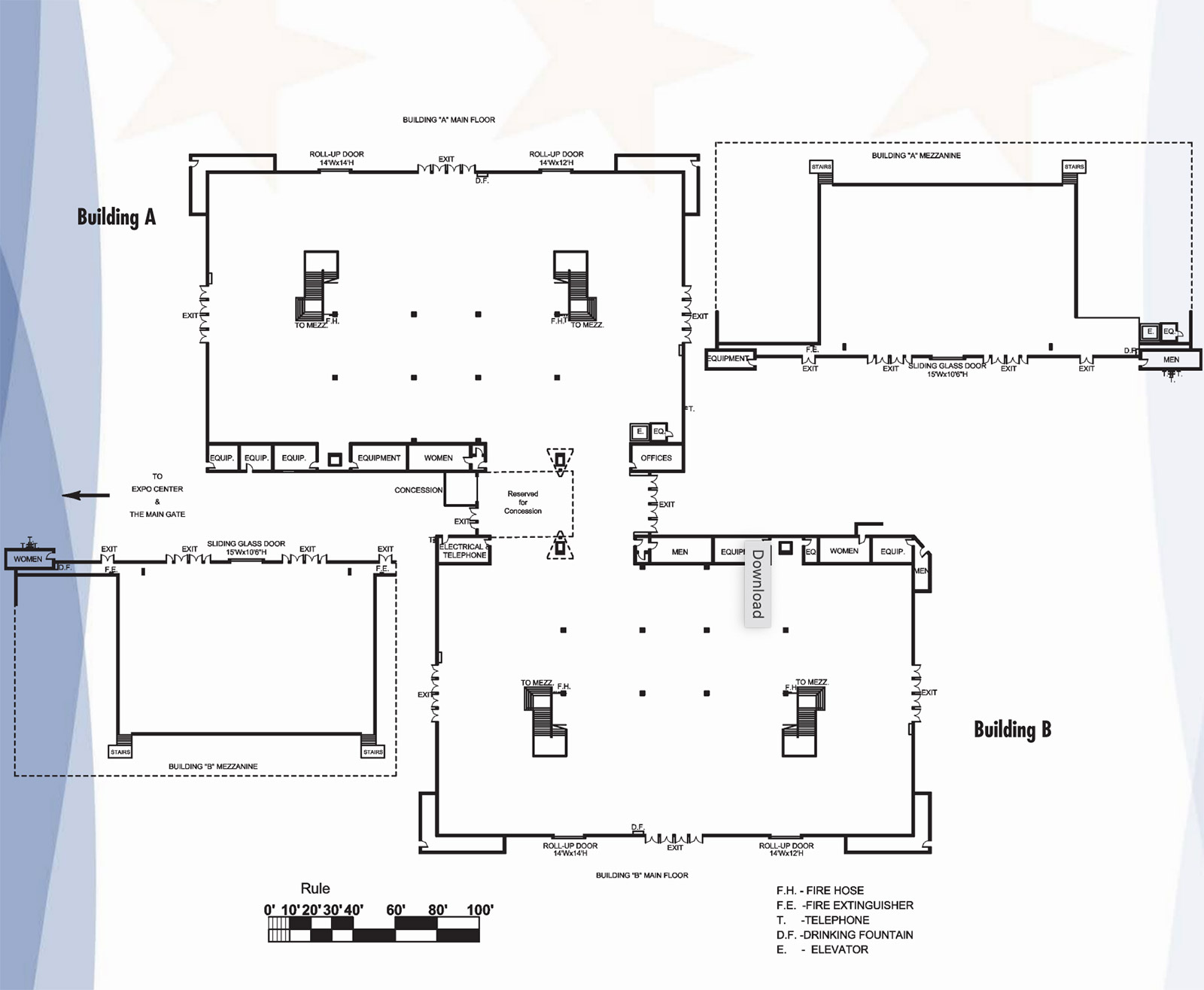
72,600 Total Square Feet
Main Floor – 55,400 Square Feet
Mezzanine – 8,600 Square Feet each side
| Dimensions | Measurements |
|---|---|
| Square Footage | Main floor 55,400, Mezzanine 8,600 |
| Main Floor Dimensions | 224’5″ L x 128’7″ W |
| 8 x 10 Booths | 210 |
| 10 x 10 Booths | 161 |
| Floor | Concrete ground floor and mezzanines |
| Power | 120/208 – 3 phase 4 wire in floor trench and ceilings |
| Lights | Metal-Halide main ceiling, fluorescent under mezzanine |
| Loading Access | Loading doors 13’10″ W x 15’10″ H and 13’10″ W x 11’6″ H Mezzanine sliding glass doors 14’11″ W x 10’7″ H |
| Loading Capacity | 3,000 lbs./sq. ft. on ground floor |
| Permanent Concessions | Lobby |
| Restrooms | Lobby and exterior second-level walkway of both buildings, north east exterior corner of Building B by the outdoor courtyard |
| Special Features | Show office with incoming phone line in Building A, house sound, elevator in Building A, ATM machines, air conditioning and heating |
| Ceiling | 32’11″ to ceiling supports, 17′ from mezzanine to ceiling, 10’6″ under mezzanine |