The Clubhouse

Remodeled in early 2014, the Clubhouse provides a refreshed look for your event. It’s a great venue for private parties, exams or business meetings and can be configured for groups from 400 guests.

Available year-round for all kinds of occasions.

The Clubhouse Gallery

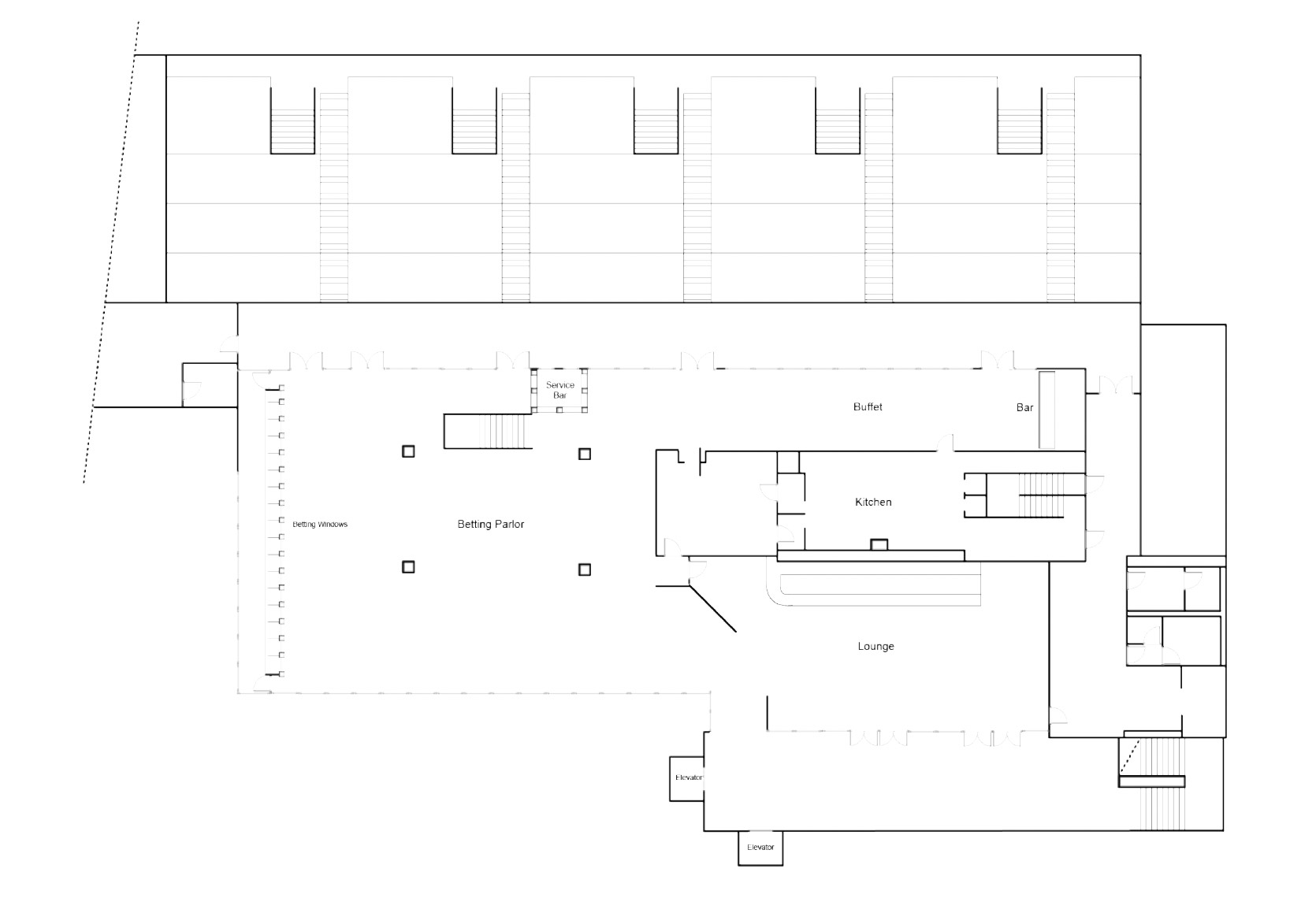
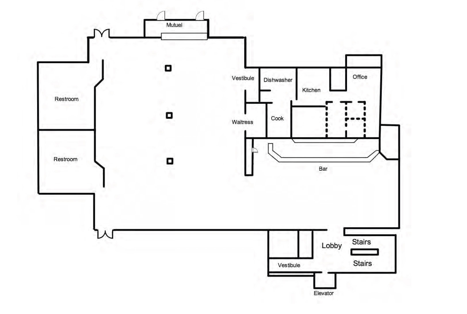
The Turf Club

Uniquely tucked away and located above the racetrack, the Turf Club is located at the south end of the Grandstand. The Turf Club combines the excitement of live racing with the intimacy of an upscale restaurant. A great venue at anytime for corporate parties, retirement parties, the club is ready to accommodate groups of 40 – 200 guests.

Available year-round with in-house catering options.

Call for quote. Soccoro Flores 279-789-3049 Oak View Group

Turf Club